| 九游娱乐官方入口【央企保利独资开发】首次进军石景山开疆扩土,打造继海德公园、和光逸境、熙悦天寰后再一京西地标杆、全新的“和系”作品,致敬城市菁英人群。 从案名来说,延续了之前和光煦境中的“煦”字,所谓“煦”,则有温暖阳光之意,当看到这一个字,就能感受到整个作品如阳光般温暖,在这座城市也闪烁着璀璨的光芒,而每一个“和系”作品之间的延续与推进,也让我们能感受到,保利通过每一个项目在传承着“和系”的精神内核。
央企保利自1992年创立以来,以雄厚的实力与前瞻的眼界,业务布局全球近110个国家和地区。成立至今荣誉满载,连续13年荣获“中国房地产行业领导公司品牌”TOP3。2022年位居《福布斯》世界排名第190位,2023年荣膺“中国房地产行业领导公司品牌”TOP1。保利北京20余年来开发70+精品项目,积极领创美好生活。
项目位于西六环外,项目距离地铁6号线号线的首发站,对于依赖地铁6号线通勤的城市内人群而言,依然是一个便捷的选择。周边景点包括石景山公园和首钢园,教育资源有石景山中学等。因此,保利璟山和煦对于在西部片区工作生活的人群来说,是一个值得考虑的优选项目。 【纯洋房的产品规划】着力打造96-103m²的全能户型、113-136m²的改善观景作品、稀缺73㎡五脏俱全神户型。
建面约75平米两居,LDK一体化设计,边户餐厅有一个大窗户,南向客厅+主卧飘窗设计,总价预计440万起,刚需选手看过来~
建面约96平米三居,南向三面宽,主卧套间设计配置飘窗,餐客厨一体,面向刚需刚改客户。
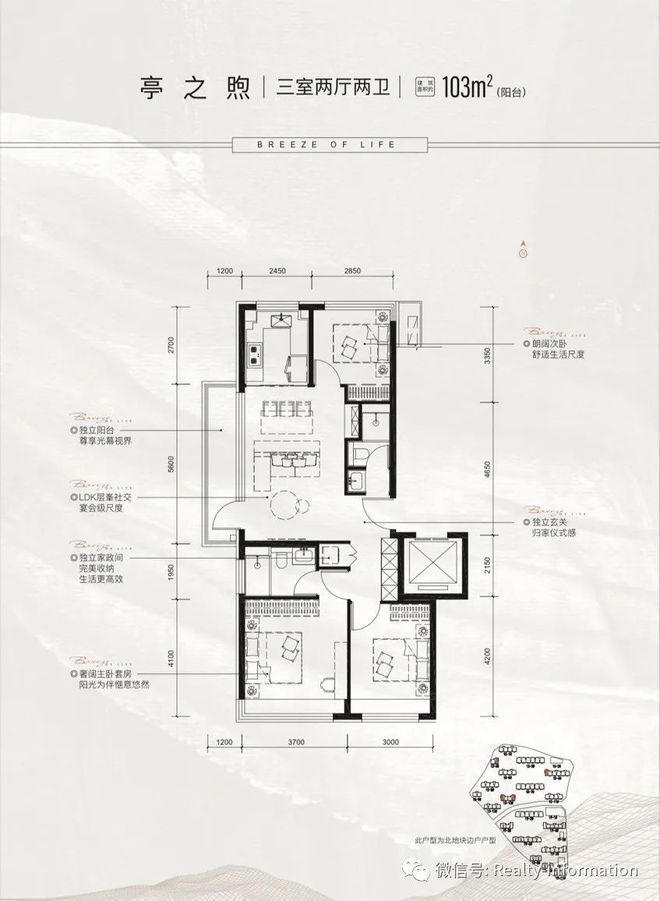
建面约103平米三居,餐客厨一体,厨房U型设计,南向双卧+客厅配置飘窗,大边厅设计,三面采光,更受年轻人的青睐~
建面约115平米三居,该户型也是96平米三居的放大版本,各功能区尺寸更大,住起来更舒适~
建面约137平米四居,是项目最大的户型,LDK一体化,经典四叶草设计,餐客厨一体,厨房U型设计,总价在840万左右,适合改善群体。
在园林设计的风格上也将打造有山水诗意的东方隐奢之境,在空间结构上呈现出“三远轴、七藏山、六隐水”的山居美学。让归家的场景像花园般自然诗意延伸,同时,整个园林基于全龄化的考虑,打造了全龄休闲活动空间,同时,在园区中还设计了三重户外会客厅,方便未来会客休闲社交所需。 区域内在售产品均价7-8万/㎡。本案指导价6.2万/㎡,单价价差1.5万/㎡。1.5km范围内坐享便利金安桥商务、交通枢纽,3km商业配套醇熟苹果园板块。 一路之隔首钢园、1.5公里金安环宇荟、2.5公里喜隆多购物中心(10万㎡,石景山CRD核心商圈大型购物综合体)、3公里最火热京西大悦城(23万㎡,石景山最IN青年生活聚场)、驾车10分钟山姆会员店、驾车20分钟五棵松华熙live。
四轨:驾车3min、骑行5min至金安桥枢纽站1.4km,可直接搭乘M11号线号线。
自驾与交通:驾车10分钟至西五环,13分钟至西四环,18分钟至西三环,28分钟至西二环阜成门桥;阜石路上快速公交4号线分钟至公主坟)
一个首钢园 =奥森(体育)=798(时尚城市更新)+朝阳公园(公园)+新国展(会展)+亦庄(产业、技术)
首钢园作为国家高端产业示范区,占地8.63万平方公里集休闲、产业、娱乐于一体。承办冬奥国际赛事,并先后引进体育、科技、航天等科技创新企业,目前已吸引航天科工智能院、兵器集团、中国探月、百度等80+家高新企业入驻,园区内无人驾驶汽车、科幻国际大赛、VR/AR体验活动随处可见;
本案西南侧京能电热厂,未来也将改造为1919京西影视文创园(十四五规划)。 · 北京银行保险产业园:已入驻中国银保信、方正期货等金融类企业30+家,2015年至今已累计实现税收超过25亿元。 · 中关村科技园区石景山园:科技服务业、信息技术产业为主导,园区上市企业20家、市“专精特新”企业205家,石景山工业互联网产业22年实现收入69亿元。 · 其他产业园区:中关村虚拟现实产业园、中关村工业互联网产业园、首创郎园Park、北重科技文化产业园、北方工业大学科技园。
首钢园占地8.63平方公里,比肩北奥森公园地产典范。园区内水、陆、空多维观景区。群明湖、秀池大型水域,元宇宙超体空间、三高炉/烟囱等特色建筑,10公里世界最长空中步道、大跳台等世界级景观配套,六工汇综合商区(占地13万㎡),涵盖购物、休闲、餐饮、五星级香格里拉酒店及亲子休闲娱乐等空间。
主城公园私属山景推窗即望,三山环绕、五园可赏;72 处京西历史文化景观环伺,生态环境宜动宜静。 城市绿化率53%、人均绿地面积74㎡,居北京之首。从首钢工业文明到2022冬奥赛事举办,首钢园见证石景山发展历史的变迁;广宁区域更是汇聚了人文气韵、城市山水、运动健康、工业产业等标签符号,广阔天地皆安宁,为城六区稀缺的宜居福地。
百亿保利物业,国家一级资质。服务北京冬奥、博鳌亚洲论坛等大型赛事及国际会议、国家信访局、司法部等国家部委。以服务赋能资产升值,业主口碑行业领先。 医疗配套:朝阳医院京西分院(6km,三甲)、解放军空军总院(驾车15分钟,三甲)、301解放军总医院(驾车20分钟,三甲)、304医院(301附属医院,驾车20分钟,三甲)、石景山医院(6.5km,准三级),首都医科大学附属北京康复医院(4.8km,三级)、首钢医院(5km,三级)、广宁及金顶街社区医院;
教育配套:西侧约500m教育用地规划(名校引入),北侧配建幼儿园;2km范围内广宁村小学、金顶街小学(23年9月投入使用)、石景山中学、北京九中/首师大附中(北京市学校文化建设示范学校),北方工业大学(北京市市属重点高校)。
1、西五环城六区,中央城区石景山,新地标新机遇,首钢+冬奥契机,未来的京西“三里屯太古里” 2、地铁6号线旁,大型交通枢纽站苹果园站,同时实现9轨道快速换乘,两横三纵畅达全城 3、一路之隔首钢园、1.5公里金安环宇荟、2.5公里喜隆多购物中心(10万㎡,石景山CRD核心商圈大型购物综合体)、3公里最火热京西大悦城(23万㎡,石景山最IN青年生活聚场)、驾车10分钟山姆会员店、驾车20分钟五棵松华熙 4、【央企保利独资开发】首次进军石景山开疆扩土,打造京西地标杆、全新的“和系”作品,致敬城市菁英人群。 5、坐览西山群,近游潭柘寺、法海寺、永定河森林公园、八大处、首钢遗址公园、得天独厚的生态涵养区。 这个新盘非常适合石景山本地附近居民上车改善,同时海淀、西城部分外溢人群。想要低总价迈入城六区的朋友,更加不要错过这个项目。 |

